方形支座的铸造工艺设计
摘要:本次设计研究的是方形支座的铸造工艺设计,支座是指用以支承和固定设备的部件。按设备外壳即容器自身的形式及安装位殷分有立式的、支承的式和裙式的支座等等。根据设计要求,材料选择灰铸铁,铸造的方式选择砂型铸造。为了避免铸件内部产生铸造缺陷,如气孔,裂纹等,影响铸件的质量和铸件的使用途径,对该铸件的结构、生产的方式以及生产的条件和工作的条件的分析,确定其铸造方案,对分型面、浇注位置、浇注系统设计,并对砂箱的样子及模板的形状设计进行了详细设计。
关键词:方形支座;铸造工艺;浇铸;砂型铸造
Casting Technology Design of Square Bearing
Abstract:This design studies the foundry technology design of square support, which refers to the components used to support and fix equipment.There are vertical, supporting and skirt support according to the form and installation position of the equipment shell, that is, the container itself.According to the design requirements, grey cast iron is chosen as material and sand casting is chosen as casting method.In order to avoid casting defects, such as blowhole and crack, which affect the quality of castings and the way of using castings, the structure, production mode, production conditions and working conditions of the castings are analyzed.The casting scheme was determined, and the parting surface, pouring position and pouring system were designed. The shape design of sand box and template was designed in detail.
Key word:Square bearing;Foundry Technology;casting;Sand mold casting。
目录
第一章 前言 5
1.1铸件的生产流程 5
第二章 方形支座的铸造工艺方案的确立 6
2.1零件的名称: 6
2.2生产产品要求: 6
2.3零件材料: 6
2.4零件的尺寸 6
2.5铸造时考虑的问题 7
2.6最小壁厚 7
2.7造型 8
第三章 铸造工艺参数的确定 8
3.1铸造工艺设计参数(简称工艺参数) 8
3.2.铸造收缩率 8
3.3机械加工余量 10
3.4起模斜度 11
3.5最小铸出孔和槽 12
3.6反变形量 13
3.7铸造圆角 14
3.8铸件精度与表面粗糙度 14
第四章 铸造方案的设计与确定 15
4.1铸造方法的确定 15
4.2分型面的选择 15
4.3分型面选择 16
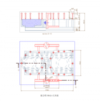
第五章 浇铸系统及冒口的设计 18
5.1浇铸系统 18
5.2浇铸时间的计算 20
5.2型腔内金属液的上升速度 21
5.3计算内浇道横截面积 22
5.4浇口杯设计 24
5.5砂型的确定 24
第六章 结论 26
第七章 感谢 27
第八章 参考文献 28
参考文献
1.曹瑜强.铸造工艺及设备第3版.机械工业出版社.北京.2016.1
2.吕凯.熔模铸造.冶金工业出版社.北京.2018.3
3.王晓江.铸造合金及其熔炼.机械工业出版社.北京.1999.10
4.荣茂.铸造工艺设计简明手册[M].哈尔滨工业大学出版社.哈尔滨.2013



















