杠杆铸件的三维建模及8mm孔的钻模设计
摘要 杠杆零件是一般机械设备中比较常见的零件之一,这类零件一般来说结构会较为简单,但是会有一些加工精度要求较高的孔需要加工。在本次的毕业设计中,本人就选择了一款较为常见的杠杆零件进行三维模型的建立和加工工艺的分析。同时,为了满足零件的加工精度需要,在设计中本人还对钻孔工序的专用夹具进行了设计。设计主要的内容是是对零件图纸进行分析,然后使用UG8.5软件对零件的三维模型进行创建。然后对零件的加工技术要求进行分析,确定零件的毛坯、基准和加工方法。最后对零件的机械加工进行安排,设计了专用的钻模夹具,并绘制了夹具的装配图。
关键词:杠杆铸件:工艺分析;钻模设计
Three dimensional modeling of lever castings and design of drill holes for 8mm holes
Abstract:The lever parts are one of the most common parts in the general mechanical equipment. In general, this kind of parts will be simpler in structure, but some holes with higher processing precision need to be processed. In this graduation project, I chose a more common lever part to establish the three-dimensional model and analyze the processing technology. At the same time, in order to meet the needs of parts processing accuracy, in the design, I also designed the special fixture for drilling process. The main content of the design is to analyze the part drawings, and then use UG8.5 software to create the three-dimensional models of the parts. Then, the processing requirements of parts are analyzed, and the blanks, datum and processing methods of parts are determined. Finally, the mechanical parts of the parts were arranged, a special drill jig was designed, and the assembly drawing of the fixture was drawn.
Keywords: Lever castings; process analysis; drill die design
第一章 绪论
1.1 设计的背景以及意义
随着现代科学技术的发展,在机械加工制造行业出现了很多的新的加工方法和加工工艺。在对零件的机械加工工艺进行分析之前,使用三维建模软件进行零件的三维建模。并结合立体的三维模型进行零件的读图、结构分析已经成为了一种趋势,并逐渐取得和传统二维图纸并重的地位。学习和使用三维建模软件也成为了现代机械加工制造专业学生所必须的一门课程,目前来说,在机械加工制造领域,较为常见的三维建模软件有CAXA、MasterCAM、UG、Pro/E,Solidworks等等。其中UG、Pro/E、CAXA是三维建模软件中的佼佼者。CAXA软件是我国的自主品牌,是由北京数码大方科技股份有限公司开发的一款三维建模软件,目前已经成为众多工科学校所必须学习的三维建模软件之一。Pro/E是由PTC公司出品的三维建模软件,其参数化的设计方式是很多三维软件所不能比拟的,但是其侧重于设计而非制造。在这三款软件中,在机械加工制造行业使用最多的就是UG了。该软件不仅具备三维建模能力,还具备数控编程的能力,在机械制造企业使用的三维软件中具有着极其大的份额。
三维建模软件的使用,主要是为了方便零件在机械加工之前的分析和分析完成之后的数控编程等作用。在对零件进行机械加工之前,还需要对零件的加工工艺进行分析。对零件加工工艺的分析主要是为了指定合理科学的零件机械加工工艺规程,指导零件的生产工作。而且,随着现代社会对工作效率的追求,不仅开始使用高效的设备,还会针对性的选择一些高效的工具。其中专用夹具就是这样一种高效的使用工具,可以在加工中缩短定位装夹的时间,提高零件的生产效率,还能保证零件的加工精度。
所以在本次毕业设计中,以零件的三维建模、工艺分析、夹具设计为题,对杠杆铸件的加工工艺规程进行设计,是为了更好的满足现代机械加工制造行业的工作需要。
1.2 设计的目的和任务
本次毕业设计是学生在校学习的最后一个教学环节,希望在指导老师的帮助下,完成一款实际机械零件的加工工艺设计和夹具设计工作。设计的目的在于巩固在校所学的机械制造理论知识,并提高自身的工作能力,为即将走上工作岗位做好充足的准备。
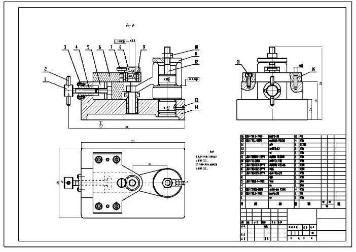
设计的主要任务包括:对零件的三维模型进行建立,并绘制零件的二维零件图纸。根据零件的加工需要,设计合适的零件毛坯并绘制二维毛坯图。对零件的加工技术要求进行分析,设计零件的机械加工工艺规程。对零件的机械加工进行安排,设计专用的钻Φ8mm小孔的钻模夹具。
目录
摘要 4
Abstract. 4
第一章 绪论 4
1.1 设计的背景以及意义 4
1.2 设计的目的和任务 5
第二章 零件的三维建模分析 6
2.1 建模软件的介绍 6
2.2 建模过程介绍 6
第三章 零件的加工工艺规程设计 13
3.1 图纸分析 13
3.2 技术要求分析 13
3.3 加工坯料的选择 14
3.4 工艺基准的选择 14
3.5 加工方法的确定 15
3.6 加工工序的拟定 15
3.6.1 加工工艺路线的拟定 15
3.6.2 加工工序的划分 16
3.7 零件的机械加工 16
3.7.1 加工设备的选择 16
3.6.3 加工夹具的选择 17
3.6.3 加工刀具的选择 17
3.6.4 切削参数的计算 18
第四章 钻模夹具设计 20
4.1 设计问题的提出 20
4.2 定位分析 20
4.3 夹紧分析 20
4.4 对刀分析 21
4.5 夹具的整体结构设计 21
4.6 夹具的操作说明 21
第五章 总结 23
参考文献 24
参考文献
1.兰建设,机械制造工艺与夹具,机械工业出版社,2007
2.乔世民 ,机械制造基础,高等教育出版社,2013
3.李立、张李铁,数控机床,高等教育出版社,2005
4.孙开元、冯小梅,公差与配合速查手册,化学工业出版社,2008
5.机械夹具设计手册,上海科学技术出版社,1986
6.张宝军、郝继红,零件车削加工,机械工业出版社,2010
7.张宁菊、赵美林,数控铣削编程与加工,机械工业出版社,2013
8.李典灿、韩慧仙,机械图样识读与测绘,机械工业出版社,2012
9.徐茂功、王平章,公差配合与技术测量,机械工业出版社,2013
10.罗红专、易传佩,机械设计基础,机械工业出版社,2011
11.周晓宏、胡旭兰、肖清,数控加工工艺,机械工业出版社,2013




















