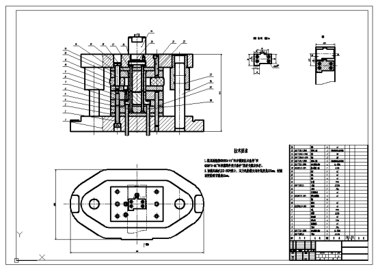
保险挂板冷冲压模具设计
摘要:冲压模具技术现在已是模具制造业中最重要的组成部分之一,我们在学校学习的很多内容都涉及到次。在当今工业电子发达的时代,他遍及了许多领域。复合冲压模的特点有很多其中最关键的是生产率高,当然不管是内孔还是外缘精度都是特别高的我的毕业设计题目为保险挂板冲裁件此冲裁件用到的是顺装式复合冲裁模。
关键词:正装复合模;排样; 落料;冲孔 
Abstract: stamping die technology is becoming one of the most important parts in the manufacturing industry, and also the main content of our study in school. In today's industrial electronic age, he covers many fields. Compound press tool have lots of characteristics,the most key among these is high output etc., of course both inner hole and the outer precision are particularly high, the blanking pieces for insurance hangs Taiwan parts, need to adopt the suitable mounted compound blanking die.
目 录
摘  要	I
第1章 引言	1
第2章 零件的设计	2
2.1 设计题目及零件形状	2
2.2 零件冲压工艺设计	3
2.2.1 冲裁件的工艺性分析	3
2.2.2 零件冲压工艺方案	3
2.3 排样设计及材料利用率	4
2.3.1 排样方案	4
2.3.2 材料利用率	4
2.4 总冲裁力的计算	6
2.5 凸凹模刃口尺寸计算	7
2.5.1 尺寸计算原则	8
2.5.2凸、凹模刃口尺寸计算	8
第3章 冲压设备的选择	10
3.1 冲压设备选择的依据	10
3.2 压力机的选择	10
第4章 冲裁模具零件设计	12
4.1 工作零件	12
4.1.1凹模尺寸及结构	12
4.1.2凸模结构计算与校核	13
4.1.3凸凹模的尺寸与校核	14
4.2 定位零件设计	16
4.3 卸料、顶件及出件的设计	17
4.3.1卸料板的设计	17
4.3.2卸料、出件方式的选择	18
4.4 弹簧和橡胶的计算	18
4.5 模架及导向零件	20
4.5.1导向方式的选择	20
4.5.2上下模座的选用	20
4.6 模炳及固定板的设计	21
4.6.1模炳的选用	21
4.6.2固定板的设计	21
4.7 冲压模具的总装配图	22
4.8 压力机的校核	23
4.8.1冲压设备的校核	23
4.8.2冲压设备的选用	23
总 结	24
致   谢	25
参考文献	26
一、引言
21世纪,世界劳动力向自动化发展,以前需要很多人才能做的事情,现在通过机器用最少的人干以亲多人却不能完成的是事,解放了劳动力但却需要更多的高新技术人才。随着社会的发展,人民的经济水平得到巨大的提升,同时模具业发展迅猛,我国冲压技术还是远不及一些工业发达的地区和国家,主要原因是我国在许多方面还远远不及一些工业发达地区和国家,例如在冲压基础理论还有成型工艺模具标准化等的相关方面,那么在很多方面的落后也就无法避免了,效率低,寿命短,都是其中的一些问题,这些方面都需要大幅改进提高。
随着人们对工业产品的需求的变化,为了达到人们的需求,自然而然就会提高其质量,可以发现现在市场上的冲压产品品种呈现出多样化、批量稍减,复杂了相反却又更加大型、精密,新迁快等变化特点,冲压模具方发展方向正趋向于更加精密更佳高效,寿命更长。随着社会的进步与推移,经过长时间的发展,创新工作,凭借计算机技术和成熟的制造技术,冲压模具设计与制造技术,计算机辅助设计(CAD)和数控计算机辅助设计与制造CAD和CAM技术转变慢慢的适应这个市场的变化节奏。随着我国模具制造业继续努力,我相信总有一天会超越其他国家,甚至最发达的国家,成为模具工业最大的国家。
在大学三年的努力学习中,我基本掌握了老师教授的机械制图与零部件的测绘、机械设计基础理论、塑料工艺、机械成型工艺等专业课的基本理论知识, 全面理解了模具的设计与制造,为了加深模具设计与制造的了解,我们进行了实践学习,对我们不熟悉的内容加以巩固,使我们能够驾轻就熟。在一汽锡柴的汽车覆盖件工作部门实习的那段时间里,我熟悉了解冷冲压模,特别是对各种模具的结构和工艺性有了更全面的了解。在工厂的师傅的指导下,再通过老师教给我们的课本知识,拆装了一些比较经典的冷冲模,并且对冷冲模的工作原理和加工工艺作出了详细的说明。在做毕业设计时,在老师的我去图书馆查阅了大量的数据资料尽最大的努力去完成毕业设计。
虽然我在设计中遇到些麻烦,但是在导师的谆谆教导,同学之间的合作讨论下,我坚信我可以顺利做完设计。由于自己的知识水平不足,设计中会存在疏忽与不足的地方,希望老师您可以帮助我矫正。
                                      
						
 
				  
					        
							



















 
					        
					 
					 
					