拨叉工艺与钻φ22两外圆的两端面夹具设计     前言
   机械制造工艺学是以机械制造中的工艺问题为研究对象,实践性较强的一门学科,通过对此门学科的课程设计,使我在下述各方面得到了锻炼:
⒈能熟练运用机械制造工艺学课程中的基本理论以及在生产实习中学到的实践知识,正确的解决一个零件在加工中的定位、夹紧以及工艺路线的安排、工艺尺寸的确定等问题,保证零件的加工质量。
⒉提高结构设计能力。通过设计夹具的训练,获得根据被加工零件的加工要求,设计出高效、省力、既经济合理又能保证加工质量的夹具的能力。
   ⒊学会使用手册及图表资料。
   ⒋培养了一定的创新能力。
通过对牛头刨床的拔叉的工艺及夹具设计,汇总所学专业知识如一体(如《互换性与测量技术基础》、《机械设计》、《金属切削机床概论》、《机械制造工艺学》、《金属切削原理与刀具》等)。让我们对所学的专业课得以巩固、复习及实用,在理论与实践上有机结合;使我们对各科的作用更加深刻的熟悉与理解,并为以后的实际工作奠定坚实的基础!
在此次设计中主要是设计牛头刨床的拨叉的铣床夹具。在此次课程设计过程中,我查阅了大量的书籍,并且得到了有关老师的指点。
目录
一、简介…………………………………………………………
二、计算生产纲领,确定生产类型……………………………
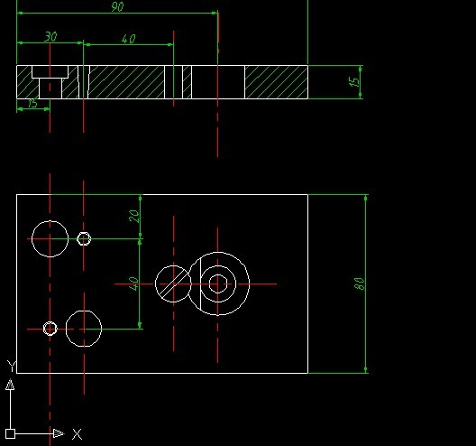
三、零件的分析………………………………………………
零件的作用
零件的结构分析
零件的技术要求分析
(四)零件的工艺分析
四、确定毛坯,画零件——毛坯复合图……………………
  1、毛坯的选择
  2、铸件的加工余量
  3、铸造毛坯图
五、工艺规程设计……………………………………
(一)定位基准的选择
(二)制定工艺路线
(三)选择加工设备及刀具,夹具,量具
(四)加工工序设计
(五)夹具设计
六、参考书目…………………………………………………
七、设计小结………………………………………………………
、参考文献
1、《切削用量手册》  艾兴、肖诗纲编   北京:机械工业出版社  1985
2、《机械制造工艺设计简明手册》 李益民编  北京:机械工业出版社 1994
3、《机床夹具设计》 哈尔滨工业大学编  上海:上海科技技术出版社1983
4、《机械制造工艺设计手册》 王绍俊编   北京:机械工业出版社 1987
5、《机械制造工艺学课程设计指导》赵家齐编 北京:机械工业出版社 1994
6、《机械工艺及装备》   倪森寿编      北京:化学工业出版社    2003
7、《机械工艺及装备课程设计指导》倪森寿编 北京:化学工业出版社    2003                                                                                                                                                                                                                                                                                                                                                                                                                                                                                                                                               
 
 
 
						
 
				  
					        
							



















 
					        
					 
					 
					