偏心垫片工艺规程制定与夹具设计
                                                     摘  要
本次设计内容涉及了机械制造工艺及机床夹具设计、金属切削机床、公差配合与测量等多方面的知识。
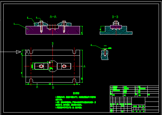
偏心垫片零件的工艺规程及其钻面上6个底孔的工装夹具设计是包括零件加工的工艺设计、工序设计以及专用夹具的设计三部分。在工艺设计中要首先对零件进行分析,了解零件的工艺再设计出毛坯的结构,并选择好零件的加工基准,设计出零件的工艺路线;接着对零件各个工步的工序进行尺寸计算,关键是决定出各个工序的工艺装备及切削用量;然后进行专用夹具的设计,选择设计出夹具的各个组成部件,如定位元件、夹紧元件、引导元件、夹具体与机床的连接部件以及其它部件;计算出夹具定位时产生的定位误差,分析夹具结构的合理性与不足之处,并在以后设计中注意改进。
关键词:工艺、工序、切削用量、夹紧、定位、误差。
目录
第1章   绪论 1
1.1引言 5
1.2机械加工工艺规程的作用 5
1.3研究方法及技术路线 6
1.4课题背景及发展趋势 7
第2章  工艺规程设计 9
2.1毛坯的制造形式 9
2. 2零件分析 9
2.3 基面的选择 9
2.3.1 粗基准的选择原则 9
2.3.2精基准选择的原则 10
2.4制定工艺路线 10
2.5确定各工序的加工余量、计算工序尺寸及公差 11
2.6确定切削用量及基本工时 13
第3章 偏心垫片的夹具设计 24
3.1定位基准选择 24
3.2切削力及夹紧力的计算分析 24
3.3误差分析与计算 24
    3.4夹具操作的简要说明 25
结  论 26
致  谢 27
参考文献 27
参 考 文 献
1, 邹青  主编  机械制造技术基础课程设计指导教程  北京: 机械工业出版社     2004,8 
2, 赵志修 主编   机械制造工艺学   北京:  机械工业出版社  1984,2
3, 孙丽媛 主编   机械制造工艺及专用夹具设计指导   北京:冶金工业出版社     2002,12   
4, 李洪  主编    机械加工工艺手册    北京: 北京出版社  1990,12
5, 邓文英 主编   金属工艺学     北京: 高等教育出版社  2000
6, 黄茂林 主编   机械原理   重庆: 重庆大学出版社 2002,7
7, 丘宣怀 主编   机械设计  北京:   高等教育出版社  1997
8, 储凯 许斌 等主编   机械工程材料  重庆: 重庆大学出版社 1997,12
9, 廖念钊 主编   互换性与技术测量  北京: 中国计量出版社  2000,1
10,乐兑谦 主编   金属切削刀具  北京: 机械工业出版社 1992,12
11,李庆寿 主编   机床夹具设计  北京: 机械工业出版社 1983,4
12,陶济贤 主编   机床夹具设计  北京: 机械工业出版社 1986,4
13, 机床夹具结构图册  贵州:贵州人民出版社 1983,7
14,龚定安 主编   机床夹具设计原理  陕西:陕西科技出版社,1981,7
15,李益民 主编   机械制造工艺学习题集  黑龙江: 哈儿滨工业大学出版社 1984, 7
16, 周永强等 主编   高等学校毕业设计指导  北京: 中国建材工业出版社 2002,12
代写艺术专业毕业论文请登录:http://www.bysj1.com/html/4122.html

 
						
 
				  
					        
							



















 
					        
					 
					 
					